Viggvägen 13 A-B, Enköping

Tomtarea: 1588 m²
Utgångspris: 2 600 000 kr
Objektstyp: Tomt

Fakta

Projekt om 2 parhus, med fyra bostäder. Husen är på 150 BOA med vind på ca 48 kvm per enhet. Totalt 600 BOA,192 BIA totalt 900 BTA för projektet. Total tomtyta på 1 588 kvadratmeter (529+355+413+291). Tomtern är redan styckad i fyra delar. Tomterna ligger i populära Haga, med närhet till Mälaren, småbåtshamn samt Hagaslott. Exlusivt område.

Bygglov enligt ritningar i annons har tidigare varit godkänt, men löpt ut. Så det krävs att man söker nytt bygglov, och där med är möjligheterna så gott som oändliga med vad man kan göra! Anslutningsavgifter är inte betalda. Priset avseer köp av alla fyra tomter, ingen entreprenad ingår. Säljare är juridiskperson och överlåtelsen kan ske genom köp av aktier i projektbolaget.

Så ni stora familjen som vill bygga tillsammans eller byggföretag som vill ha ett projekt med god avkastning så finns här den sista chansen att förvärva tomt på Knipvägen och Viggvägen

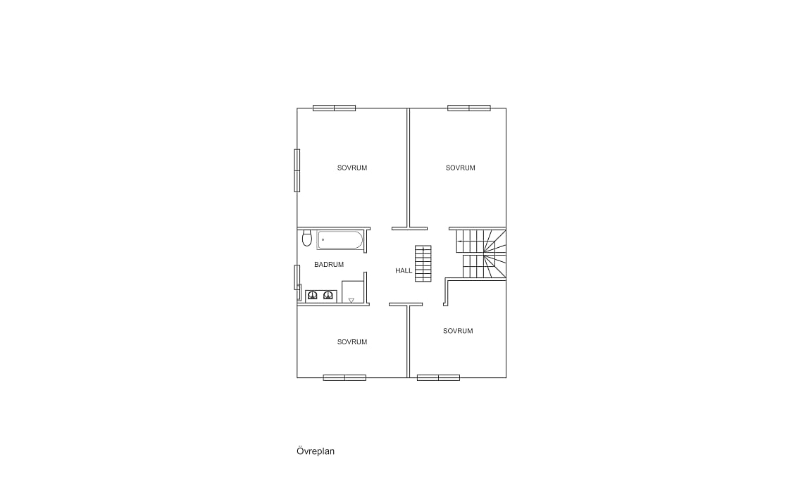
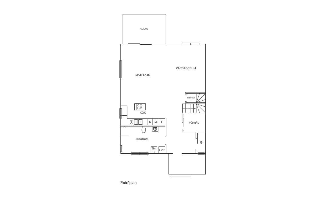
Interiörbilder är från ett hus annat objekt. Samtliga övriga bilder är från det gamla bygglovet och kan inte garanteras att man får exakt samma bygglov igen.

Varmt välkomna med frågor och besök gärna tomterna själva.
Tomt
Upplåtelseform: Friköpt
4 tomter på Viggvägen 13 A - B och Knipvägen 1 A - B.
Tomternas är 413, 291, 355, 529 och totalt 1 588 kvm.
Fastighetsbeteckning: HAGA 2:256, HAGA 2:255, HAGA 2:242 och HAGA 2:254
Taxeringsvärde: 3 032 000 kr (758 000 kr per fastighet)
Gemensamhetsanläggning: Enköping Haga GA:6 ändamål: Vägar, Kvartersanläggning, Gemensamhetsanläggning: Enköping Haga GA:7
Övrig info
Interiörbilder är från ett hus annat objekt
Samtliga övriga bilder är från det gamla bygglovet och kan inte garanteras att man får exakt samma bygglov igen
Utgångspriset gäller för fyra tomter
Basfakta
  • Typ
    Tomt
  • Län
    Uppsala
  • Kommun
    Enköping
  • Område
    Haga
  • Gatuadress
    Viggvägen 13 A-B
Taxering
  • Fastighetsbeteckning
    ENKÖPING HAGA 2:242 samt 2:254 - 256
Objektsdetaljer
  • Tomtarea
    1588 m²
  • Avlopp
    Ej inkopplat, Kommunalt
  • Vatten
    Ej inkopplat, Kommunalt

Karta

Visa i Google Maps

Bilder

Kostnadsfri Värdering

Lämna ditt nummer nedan så ringer vi upp dig

Planritning

Visningar

Kontaktformulär för visningsanmälan
Visningsanmälan
Tack! Den ansvarige mäklaren kommer inom kort att få ditt meddelande.
Tack för din anmälan! Den ansvarige mäklaren har underrättats.
Varmt
välkommen på
visning!
Jakob Jamieson
Reg. Fastighetsmäklare

Budgivning

Om du behöver hjälp med att lägga ett bud, var god kontakta kundtjänst
Budgivning öppen
Utgångspris
2 600 000 kr
Registrera konto
För att lägga ett bud på det här objektet måste du registrera ett användarkonto.
Skapa konto med BankID Skapa konto med lösenord

Kontakt

Jakob Jamieson
Jakob Jamieson
Reg. Fastighetsmäklare
Har du frågor om objektet?
Har du frågor om bostaden lämnar du ditt mobilnummer så får du ett sms med mäklarens kontaktuppgifter. Du kommer också få löpande uppdateringar om bud, visningar m.m.
Det går även bra att kontakta oss på:
Våra partners